06. Leisure Module

LEISURE MODULE

Ubicación: Dapa, Yumbo
2019
Equipo:

Santiago Osorio
Mauricio Suarez
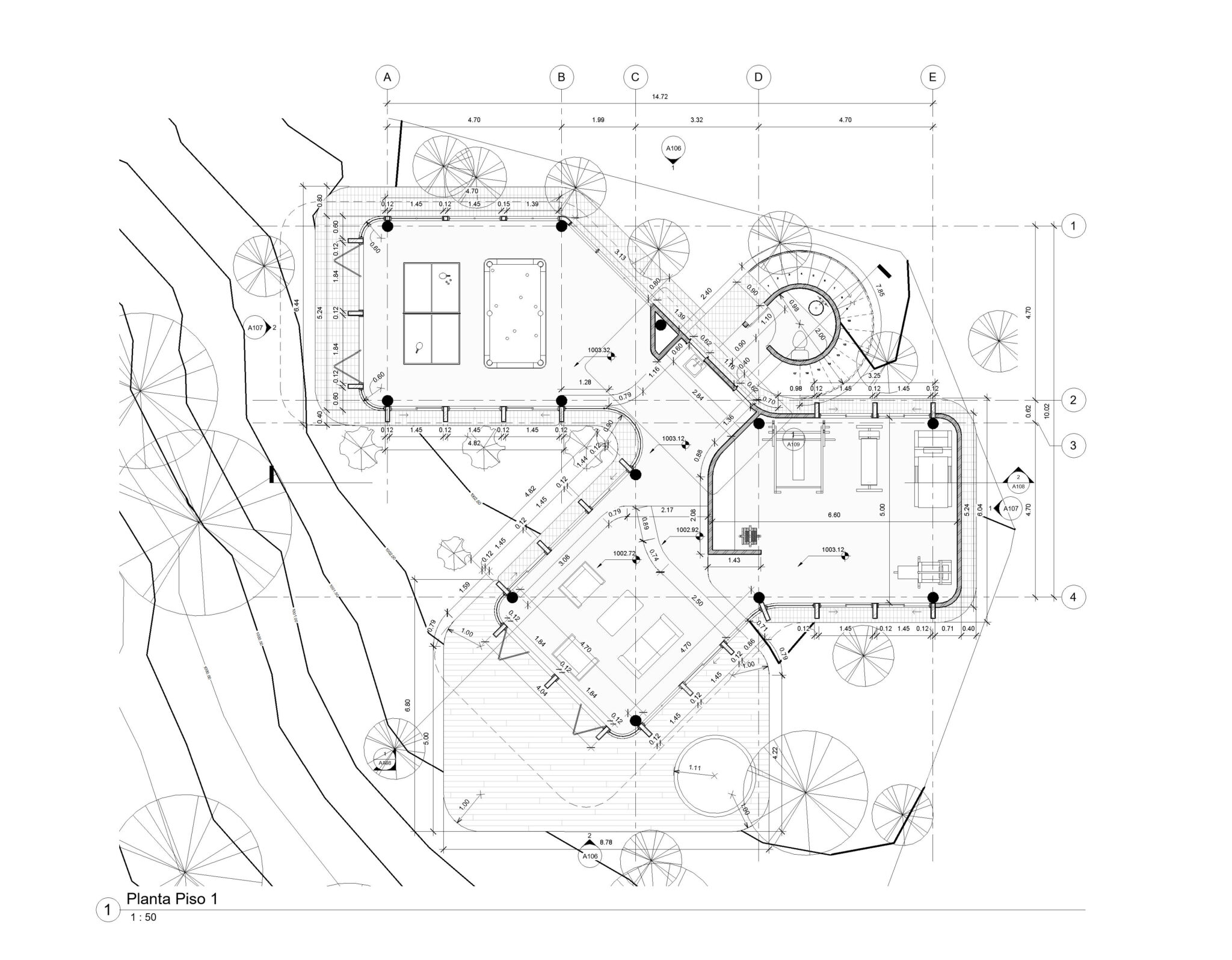
El presente proyecto, denominado "Módulo de Esparcimiento y Ocio", ha sido desarrollado en respuesta a las necesidades específicas de nuestro cliente. El objetivo principal de este encargo consistió en diseñar un espacio que pudiera integrar cuatro áreas especializadas, destinadas a complementar la vivienda contigua existente. Entre los espacios concebidos para este proyecto, se encuentra un salón de juegos, que contará con una mesa de billar, una mesa de ping pong y una máquina de arcade. Asimismo, se contempla un área destinada para la ubicación de un gimnasio, así como una sala y una terraza con zona de bbq.
The present project, called "Recreation and Leisure Module," has been developed in response to the specific needs of our client. The main objective of this commission was to design a space that could integrate four specialized areas, intended to complement the existing adjacent residence. Among the spaces conceived for this project is a game room, which will feature a pool table, a ping pong table, and an arcade machine. Additionally, an area is contemplated for the placement of a gym, as well as a lounge and a terrace with a BBQ area.
Siguiendo las preferencias del cliente por entornos naturales, se seleccionó un sitio con una abundante vegetación arbórea para la concepción de nuestro proyecto arquitectónico. Este factor fue determinante en la configuración de nuestro enfoque y en la distribución espacial contemplada en el programa arquitectónico. La concepción del diseño se originó a partir de una meticulosa y exhaustiva evaluación de los árboles ya existentes en el área, lo que llevó a la convicción de que la conservación del entorno natural y la adaptación del diseño y funcionalidad a las condiciones del lugar eran aspectos ineludibles. En consecuencia, tras una serie de ejercicios y estudios rigurosos, se alcanzó un planteamiento coherente y congruente con estas premisas fundamentales.
Following the client's preference for natural environments, a site with abundant tree vegetation was selected for the conception of our architectural project. This factor was decisive in shaping our approach and in the spatial distribution outlined in the architectural program. The design concept originated from a meticulous and exhaustive evaluation of the existing trees in the area, which led to the conviction that the conservation of the natural environment and the adaptation of the design and functionality to the site's conditions were essential aspects. Consequently, after a series of rigorous exercises and studies, a coherent and consistent approach was achieved in line with these fundamental premises.