18. Espacio Coworking

ESPACIO COWORKING

Ubicación: Cali, Colombia
2022
Equipo:

Santiago Osorio
Mauricio Suarez
Carlos Darío Peña
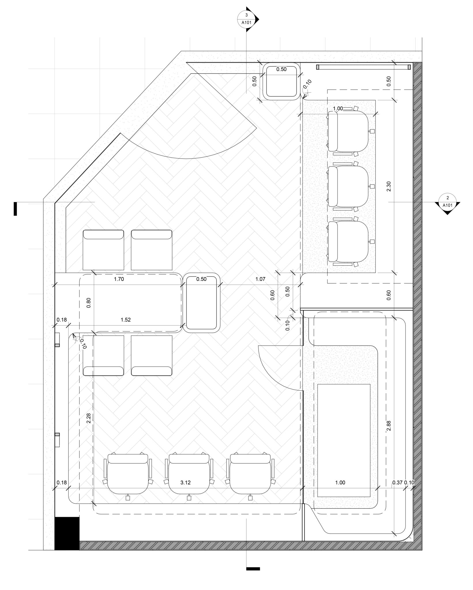
Nuestra firma recibió el encargo de diseñar un espacio de coworking, el cual se ha concebido como un lugar altamente flexible y adaptable a las necesidades de los usuarios. En este sentido, se han propuesto tres tipos de estaciones de trabajo: seis estaciones fijas, cuatro puestos de trabajo para equipos móviles y una pequeña sala de reuniones, todo ello complementado con una estación de café. Además, el ambiente ha sido cuidadosamente diseñado para ser acogedor y agradable, con la incorporación de plantas de sombra que crean un entorno más relajante y productivo.
Our firm was commissioned to design a coworking space, which has been conceived as a highly flexible and adaptable place to meet the users' needs. In this sense, three types of workstations have been proposed: six fixed stations, four workstations for mobile devices, and a small meeting room, all complemented by a coffee station. Additionally, the environment has been carefully designed to be cozy and pleasant, with the incorporation of shade plants that create a more relaxing and productive setting.