Somstudio

Somstudio

16. Casa Rozo

CASA ROZO

Ubicación: Colombia
2021
Equipo:

Santiago Osorio
Mauricio Suarez
Carlos Darío Peña
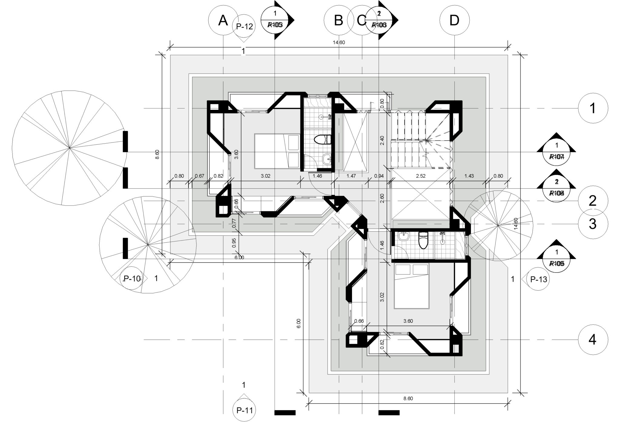
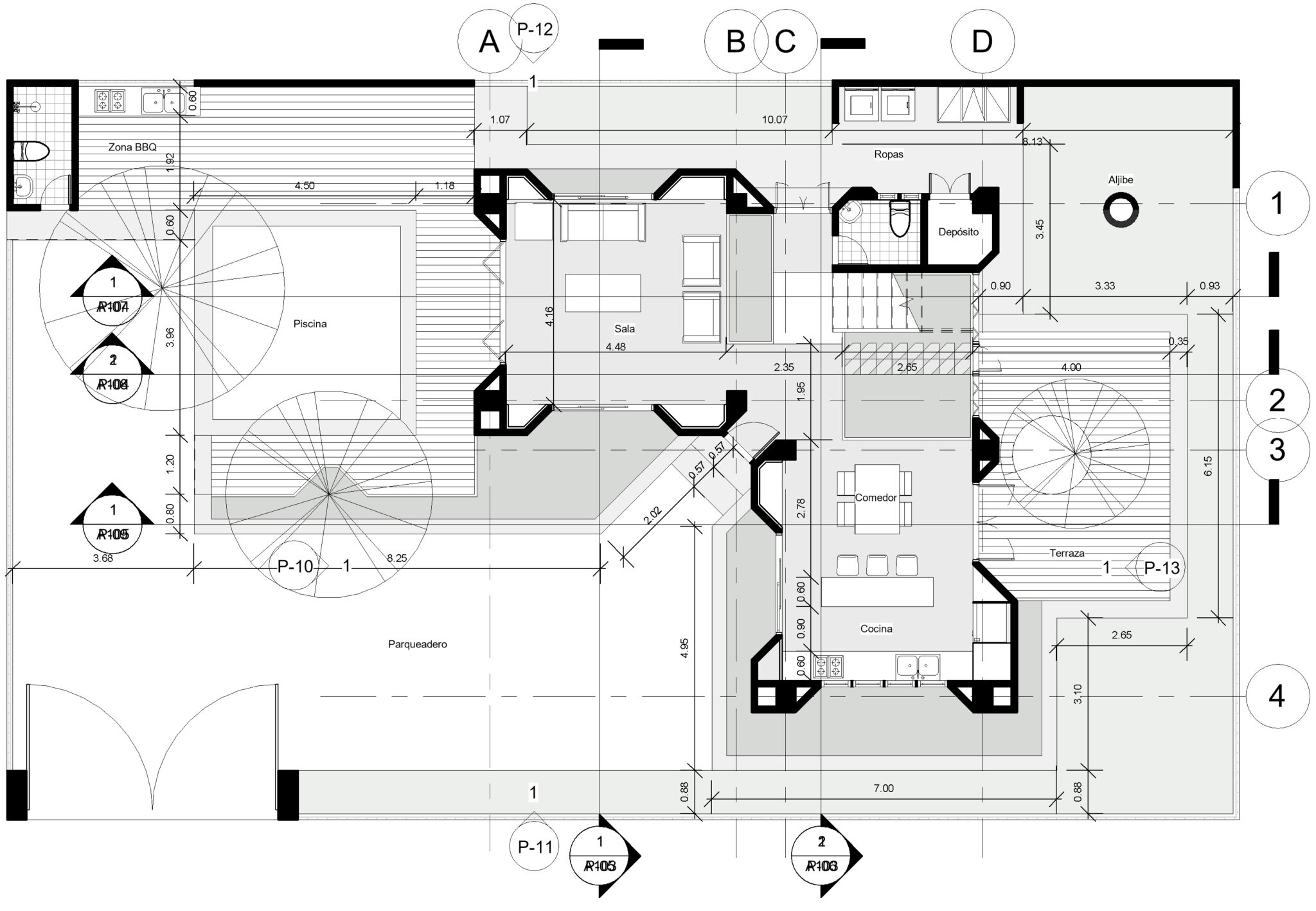
El diseño de esta casa unifamiliar tuvo como principal premisa la incorporación de vegetación en los espacios interiores, así como en los balcones y la terraza verde. La tipología en forma de L se seleccionó debido a la relación buscada con el terreno y los vecinos, siendo la esquina interna el punto de acceso principal que conduce a un vestíbulo adyacente a un exuberante jardín. Este núcleo de jardín interior, junto con un baño social, actúa como punto central y articula todo el programa de la casa, relacionando los espacios dispuestos en las dos alas de la L.
The main premise behind the design of this single-family home was the incorporation of vegetation in the interior spaces, as well as on the balconies and productive green terrace. The L-shaped typology was chosen due to the desired relationship with the terrain and neighbors, with the inner corner serving as the main access point that leads to a vestibule adjacent to a lush garden. This central garden core, along with a social bathroom, acts as the focal point and articulates the entire program of the house, relating the spaces arranged in the two wings of the L.
La vegetación no solo aporta un valor estético y ambiental a la vivienda, sino que también brinda múltiples beneficios como una mejora en la calidad del aire interior y la regulación térmica. Además, la terraza verde productiva permite la producción de alimentos frescos y saludables para los residentes de la casa.
Vegetation not only provides aesthetic and environmental value to the house, but also provides multiple benefits such as an improvement in indoor air quality and thermal regulation. In addition, the productive green terrace allows for the production of fresh and healthy food for the residents of the house.
La disposición en L de la casa no solo se adapta al terreno, sino que también ayuda a maximizar la entrada de luz natural y la ventilación cruzada. La esquina interna, que sirve como acceso principal, se encuentra estratégicamente ubicada para mantener la privacidad y la conexión con el jardín interno
The L-shaped layout of the house not only adapts to the terrain, but also helps to maximize natural light and cross ventilation. The inner corner, which serves as the main entrance, is strategically located to maintain privacy and connection with the internal garden.